Urban Living

A boutique fourplex designed for contemporary urban living, where light, flow, and privacy shape each residence. The design balances efficient layouts with elevated details, creating homes that feel spacious, elevated, and timeless. Each two-bedroom residence offers open-plan living for entertaining, private retreats for rest, and a seamless connection to the outdoors. Crafted for both elegance and functionality, the Fourplex embodies refined urban design for modern lifestyles.


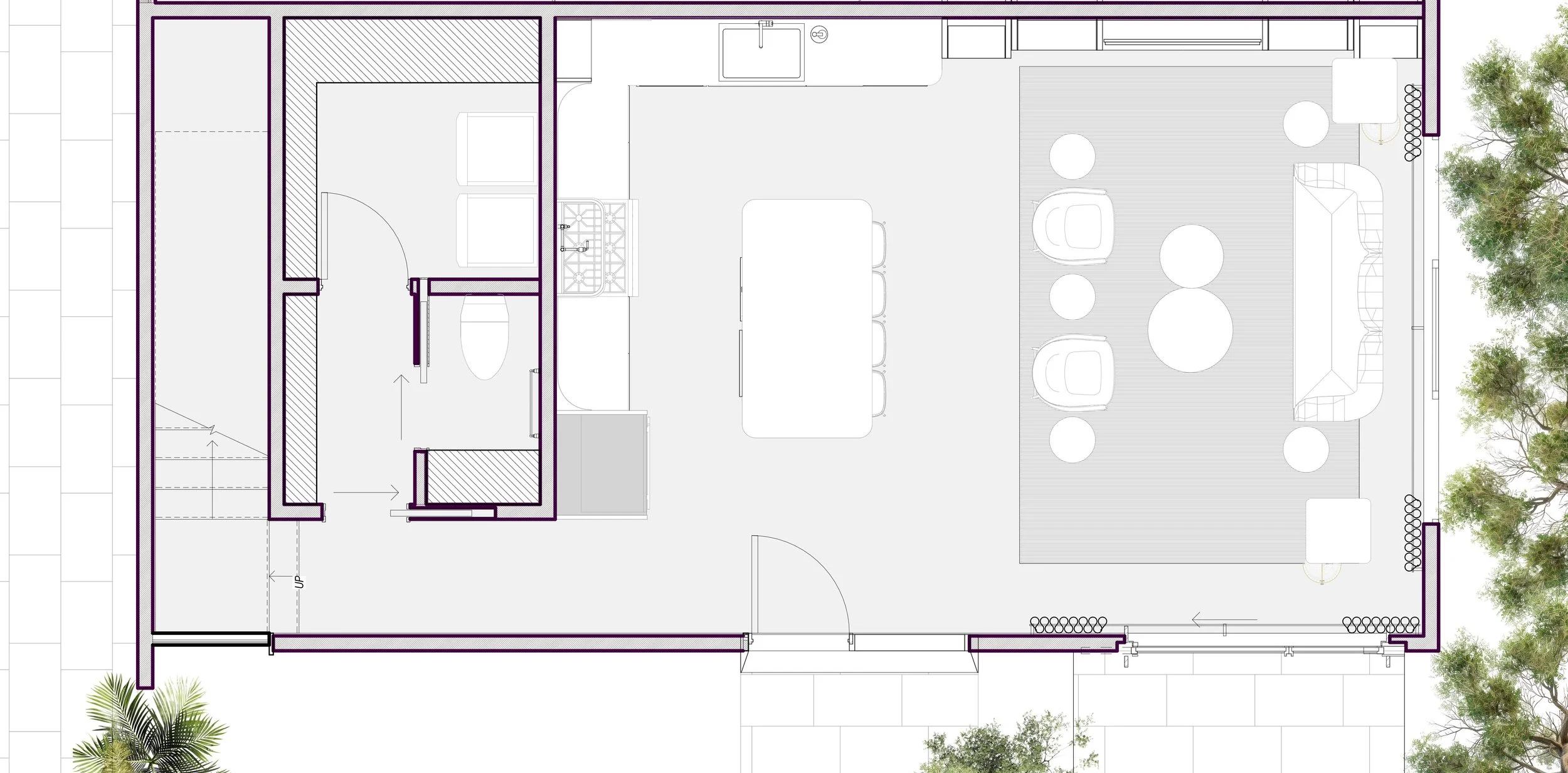
1,200 Sqft Each | 2 Beds | 2.5 Baths | 4 Residences

Exploded Axonometric

A thoughtfully designed multi-unit, fourplex, with only one unit facing the street, preserving a cohesive facade, rather than a row elevation with multiple doors.

The remaining units are arranged around a central courtyard, giving each home direct access to green space and enhancing privacy.

Front Elevation

Unit Floor Plan

Inquire

Dream it

〰️

Dream it 〰️

Previous
Previous

Canyon Ridge - Custom Home

Next
Next

Casita - ADU